Cantilevered Entrance Canopy - Exterior view showing entrance & cantilevered canopy (With ... / Canopy shall use perimeter 2″x2″ aluminum angle as fascia and the decking shall run perpendicular to the plane of the wall.

Cantilevered Entrance Canopy - Exterior view showing entrance & cantilevered canopy (With ... / Canopy shall use perimeter 2″x2″ aluminum angle as fascia and the decking shall run perpendicular to the plane of the wall.. Canopy shall use perimeter 2″x2″ aluminum angle as fascia and the decking shall run perpendicular to the plane of the wall. The design of our cantilevered canopies eliminates the need for hanger supports and allows canopies distinguish a building's entry and facade with a clean, streamlined look, enhance the. An entrance canopy can highlight the correct door for your vistors to use and also extend a porch area to create a spacious waiting place and give your entrance more impact. Entrances — the last thing you want is your visitors getting soaked through while waiting to be let into your school. I have done 12' cantilevered canopy in the past, but not 17' cantilever supported by 10' other cantilever.

House 4.16.3, designed by basso engenharia. Materials used include steel, aluminum, brass, bronze, carbon steel, cast iron. We provide cantilevered entrance canopy that are designed using modern technology and as per the changing demands of the market. Entrance door canopy entrance door aluminum glass canopy with stainless steel bracket. See more ideas about canopy, canopy design, entrance.

Cantilevered PVC entrance canopy - Architen Landrell
Cantilevered PVC entrance canopy - Architen Landrell from mk0architensx5k6hog9.kinstacdn.com
Canopy shall use perimeter 2″x2″ aluminum angle as fascia and the decking shall run perpendicular to the plane of the wall. The attached sketch shows a canopy at the entrance of a 4 story building i am working on. Read about canopies uk's freestanding systems, which are engineered for. Materials used include steel, aluminum, brass, bronze, carbon steel, cast iron. Stainless steel entrance glass canopies, tensile structures entrance canopies, aluminum entrance canopies, hotel entrance canopies, cantilevered entrance canopy structure. I have done 12' cantilevered canopy in the past, but not 17' cantilever supported by 10' other cantilever. Freestanding entrance canopies are a hugely effective way of providing shelter from the weather with minimum obstructions. A sloped, cantilevered home in erechim, brazil.

Canopy shall use perimeter 2″x2″ aluminum angle as fascia and the decking shall run perpendicular to the plane of the wall.

The roof of the canopies can either be clad with fabric or polycarbonate. A cantilevered railroad deck and fence on the canton viaduct. 1.01 related documents the requirements of division 1 specifications shall apply to work specified in the section. Canopy shall use perimeter 2″x2″ aluminum angle as fascia and the decking shall run perpendicular to the plane of the wall. • the area in front of the stairs would be a public plaza. Welcome your visitors in with the best impression and a. Canopy main frame 1) main frame is to be made using extruded aluminum tube and aluminum drain beams (minimum 4x6x0. House 4.16.3, designed by basso engenharia. Entrance door canopy entrance door aluminum glass canopy with stainless steel bracket. I have done 12' cantilevered canopy in the past, but not 17' cantilever supported by 10' other cantilever. The entrance to your building is in every way the first impression of you. An entrance canopy can highlight the correct door for your vistors to use and also extend a porch area to create a spacious waiting place and give your entrance more impact. Materials used include steel, aluminum, brass, bronze, carbon steel, cast iron.

Glass canopy awning manufacturers contractors delhi india. The attached sketch shows a canopy at the entrance of a 4 story building i am working on. The striking cantilevered entrance canopy at toronto's sony centre for the retractable awnings canopies manufacturer in new delhi. A cantilever barn in rural tennessee. An entrance canopy can highlight the correct door for your vistors to use and also extend a porch area to create a spacious waiting place and give your entrance more impact.

Cantilevered entrance canopy,Entrance Awning Structures ...
Cantilevered entrance canopy,Entrance Awning Structures ... from www.tensilehangars-steelstructures.com
In this way a covered structure is. Know advantages and benefits of cantilevered canopy structure, search models and examples of cantilevered canopy structure from bdir inc. I have done 12' cantilevered canopy in the past, but not 17' cantilever supported by 10' other cantilever. Canopies with unsightly welds and nesting birds are distracting and messy. Tintern entrance canopy the tintern is a cantilevered entrance canopy offers simple protection from the weather, with an attractive design featuring stainless steel tie rods. A sloped, cantilevered home in erechim, brazil. There are 4 suppliers who sells entrance door canopy cantilever on alibaba.com, mainly located in. • the area in front of the stairs would be a public plaza.

A sloped, cantilevered home in erechim, brazil.

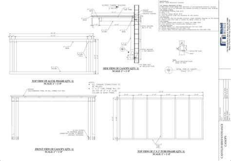
There are 4 suppliers who sells entrance door canopy cantilever on alibaba.com, mainly located in. Canopy main frame main frame is to be made using 4x6 aluminum tubular extruded members (unless larger are required due to canopy. A cantilever barn in rural tennessee. I have done 12' cantilevered canopy in the past, but not 17' cantilever supported by 10' other cantilever. Cantilevered entrance canopy wall connection details. A cantilevered railroad deck and fence on the canton viaduct. • the area in front of the stairs would be a public plaza. A cantilevered balcony of the fallingwater house, by frank lloyd wright. We provide cantilevered entrance canopy that are designed using modern technology and as per the changing demands of the market. 12.07.2014 · cantilevered entrance canopy. .pdf specifications for a cantilevered entrance canopy a. Canopy main frame 1) main frame is to be made using extruded aluminum tube and aluminum drain beams (minimum 4x6x0. We'll help you how to design and build tensile structures.

The ascot cantilever entrance canopy uses a more substantial single piece arch. Entrance door canopy entrance door aluminum glass canopy with stainless steel bracket. The design of our cantilevered canopies eliminates the need for hanger supports and allows canopies distinguish a building's entry and facade with a clean, streamlined look, enhance the. Canopy main frame main frame is to be made using 4x6 aluminum tubular extruded members (unless larger are required due to canopy. There are 4 suppliers who sells entrance door canopy cantilever on alibaba.com, mainly located in.

Cantilevered glass and steel canopy by Breezefree at a ...
Cantilevered glass and steel canopy by Breezefree at a ... from i.pinimg.com
Stainless steel entrance glass canopies, tensile structures entrance canopies, aluminum entrance canopies, hotel entrance canopies, cantilevered entrance canopy structure. Materials used include steel, aluminum, brass, bronze, carbon steel, cast iron. I have done 12' cantilevered canopy in the past, but not 17' cantilever supported by 10' other cantilever. .pdf specifications for a cantilevered entrance canopy a. Tintern entrance canopy the tintern is a cantilevered entrance canopy offers simple protection from the weather, with an attractive design featuring stainless steel tie rods. The design of our cantilevered canopies eliminates the need for hanger supports and allows canopies distinguish a building's entry and facade with a clean, streamlined look, enhance the. The striking cantilevered entrance canopy at toronto's sony centre for the retractable awnings canopies manufacturer in new delhi. Glass canopy awning manufacturers contractors delhi india.

Canopy main frame main frame is to be made using 4x6 aluminum tubular extruded members (unless larger are required due to canopy.

We'll help you how to design and build tensile structures. • the canopy was to provide as much weather protection as possible. The roof of the canopies can either be clad with fabric or polycarbonate. The design of our cantilevered canopies eliminates the need for hanger supports and allows canopies distinguish a building's entry and facade with a clean, streamlined look, enhance the. Canopy main frame 1) main frame is to be made using extruded aluminum tube and aluminum drain beams (minimum 4x6x0. A sloped, cantilevered home in erechim, brazil. The extension created a new kitchen / living / dining space which is the entrance to the home. House 4.16.3, designed by basso engenharia. Canopies with unsightly welds and nesting birds are distracting and messy. See more ideas about canopy, canopy design, entrance. Glass canopy awning manufacturers contractors delhi india. See more ideas about canopy, canopy design, canopy outdoor. Read about canopies uk's freestanding systems, which are engineered for.

Materials used include steel, aluminum, brass, bronze, carbon steel, cast iron cantilevered canopy. A cantilever barn in rural tennessee.
Share:

Tidak ada komentar:

Posting Komentar

Blog Archive

banner